Мойка для кухни Omoikiri Akisame 100-2-GM-R 100 см вороненая сталь, чаша справа 4973104 Hi macs
Нажмите на изображение для просмотра
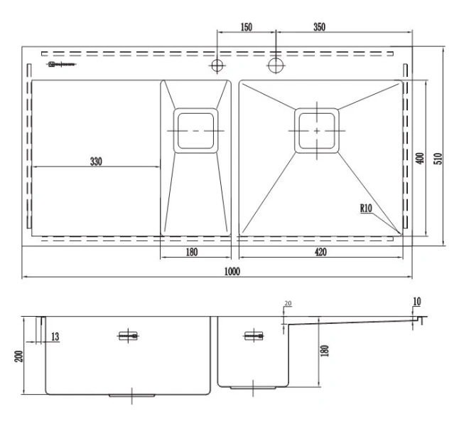
Мойка для кухни Omoikiri Akisame 4973104 – стильное и надежное решение. Размер выреза под мойку 98 x 49 см. Основная чаша 40 х 42 см, вторая чаша – 40 x 18 см. Изготовлена вручную с брашированной поверхностью и PVD покрытием в вороненую сталь, что придает ей современный вид и высокую устойчивость к повреждениям. Толщина материала составляет 1,2 мм. В комплект входят крепления, донный клапан, сифон и декоративный корзинчатый элемент. Вес изделия – 10.3 кг.
| Импорт | |
| Высота | 20 см |
| Гарантия | 15 лет |
| Глубина | 51 см |
| Дополнительные свойства | С крылом |
| Дополнительные чаши | 1 |
| Материалы корпуса | Нержавеющая сталь, Стальные, Металлические |
| Основные чаши | 1 |
| Установка | Врезные |
| Форма | Прямоугольная |
| Ширина | 100 см |











